DAVIDGOESSLER ARCHITEKTUR

KUHHOLZ

"Häuser des Jahres, 2023" – Callwey Verlag – Anerkennung

80 m2 BGF // 2021-2022
David Gössler, Olivia Sommer
Photos: © Constantin Riess

Kuhholz 9
Kuhholz 9
Kuhholz 9
Kuhholz 9
Kuhholz 9
Kuhholz 9
Kuhholz 9
Kuhholz 9
Kuhholz 9
Kuhholz 9
Kuhholz 9
Kuhholz 9
Kuhholz 9
Kuhholz 9
Kuhholz 9
Kuhholz 9

Bestand
Das Bestandsgebäude wurde Anfang der 1990er Jahre als Wochenend- und Ferienhaus mit Nähe zur Schlei in Schleswig-Holstein errichtet. Kaum einsehbar von der Straße erstreckt sich das Grundstück in die Tiefe bis zu einem weiten Feld zwischen zwei Knicks. Das Gebäude steht auf dem hinteren, nördlichen Teil, der Garten im Süden ist ein Idyll im Grünen.

Das Haus ist geprägt von einem großen, überstehenden Satteldach. Zwei Unterschnitte für Terrasse und Eingang sind punktsymmetrisch im Grundriss angeordnet. Die Wegeführung auf dem Grundstück ist jedoch nicht eindeutig, der Eingang wirkt verlegen, dunkel und nicht einladend. Die Fassade mit dunkel grün lackierter Holzschalung ist zum Garten verschlossen. Ein Austritt aus dem Wohnraum ist nicht möglich, sodass der Garten kaum als Ort der Erholung genutzt wird.

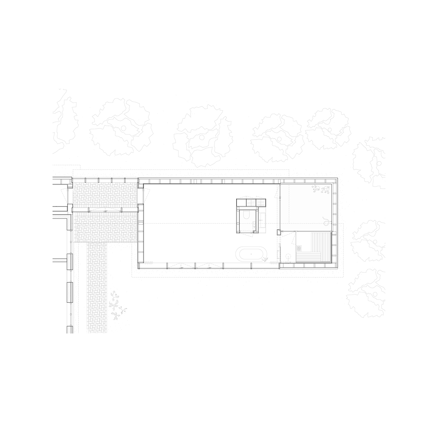
Das Bestandshaus soll um einen Wohnraum mit Sanitärbereich und Sauna erweitert werden. Es ist dabei das Ziel, die Qualitäten des Ortes, insbesondere des idyllischen Gartens, zu stärken und den Wohnbereich mit dem Garten zu verbinden.

Konzept
In Analogie zum Bestand erstreckt sich ein neues Satteldach entlang des östlichen Knicks und überspannt einen großen, zusammenhängenden Raum. Eine Dachhälfte wird unter das Dach des Bestands geschoben. Ganz selbstverständlich klärt sich dadurch die Eingangssituation zwischen den Gebäuden und im Inneren des Neubaus entsteht ein offener Bereich unter freiem Himmel, der gleichzeitig Privatsphäre für Sauna- und Nassbereich bietet. Das Gebäude öffnet sich zu Garten und Bestand. Ein Block als Möbelstück im Raum gliedert Wohn- und Nassbereich. Aus der großzügigen Wanne lässt sich der Blick über den Garten in die Abendsonne genießen.

KUHHOLZ

"Häuser des Jahres, 2023" – Callwey Verlag – Anerkennung

80 m2 BGF // 2021-2022
David Gössler, Olivia Sommer
Photos: © Constantin Riess


Bestand
Das Bestandsgebäude wurde Anfang der 1990er Jahre als Wochenend- und Ferienhaus mit Nähe zur Schlei in Schleswig-Holstein errichtet. Kaum einsehbar von der Straße erstreckt sich das Grundstück in die Tiefe bis zu einem weiten Feld zwischen zwei Knicks. Das Gebäude steht auf dem hinteren, nördlichen Teil, der Garten im Süden ist ein Idyll im Grünen.

Das Haus ist geprägt von einem großen, überstehenden Satteldach. Zwei Unterschnitte für Terrasse und Eingang sind punktsymmetrisch im Grundriss angeordnet. Die Wegeführung auf dem Grundstück ist jedoch nicht eindeutig, der Eingang wirkt verlegen, dunkel und nicht einladend. Die Fassade mit dunkel grün lackierter Holzschalung ist zum Garten verschlossen. Ein Austritt aus dem Wohnraum ist nicht möglich, sodass der Garten kaum als Ort der Erholung genutzt wird.

Das Bestandshaus soll um einen Wohnraum mit Sanitärbereich und Sauna erweitert werden. Es ist dabei das Ziel, die Qualitäten des Ortes, insbesondere des idyllischen Gartens, zu stärken und den Wohnbereich mit dem Garten zu verbinden.

Konzept
In Analogie zum Bestand erstreckt sich ein neues Satteldach entlang des östlichen Knicks und überspannt einen großen, zusammenhängenden Raum. Eine Dachhälfte wird unter das Dach des Bestands geschoben. Ganz selbstverständlich klärt sich dadurch die Eingangssituation zwischen den Gebäuden und im Inneren des Neubaus entsteht ein offener Bereich unter freiem Himmel, der gleichzeitig Privatsphäre für Sauna- und Nassbereich bietet. Das Gebäude öffnet sich zu Garten und Bestand. Ein Block als Möbelstück im Raum gliedert Wohn- und Nassbereich. Aus der großzügigen Wanne lässt sich der Blick über den Garten in die Abendsonne genießen.


DAVID GÖSSLER | ARCHITEKTUR