DAVIDGOESSLER ARCHITEKTUR

WEITBLICK

"Häuser des Jahres, 2024" – Callwey Verlag – Longlist

490 m2 BGF // 2021-2023
David Gössler, Jakob Wolters, Yola Fahdt
Photos: © Constantin Riess

Grenzenlos
Grenzenlos
Grenzenlos
Grenzenlos
Grenzenlos
Grenzenlos
Grenzenlos
Grenzenlos
Grenzenlos
Grenzenlos
Grenzenlos
Grenzenlos

Bestand
Das Haupthaus wurde in seiner Geschichte bereits mehrfach umgebaut und verändert, sodass von seiner historischen Struktur vom Ende des 19. Jahrhunderts nur noch wenig vorgefunden wurde. Das Gebäude wurde zwischenzeitlich zu einem Mehrfamilienhaus aufgeteilt, das Dach vollständig abgetragen, erneuert und dabei ausgebaut. Das Innere war entsprechend verwinkelt und verbaut. Von der ursprünglichen Großzügigkeit der verbundenen Wohnräume fehlte jede Spur. Bereits der ursprüngliche Bau hatte auf der der Straße abgewandten Seite keinen Zugang zum Garten. Das Erdgeschoss wurde als Hochparterre ausgeführt, sodass im Inneren der Eindruck einer innerstädtischen Erdgeschosswohnung anstelle der eines großzügigen Einfamilienhauses im Grünen entstand.

Konzept
Das Konzept sieht daher die Öffnung des Haupthauses zur Gartenseite vor. Die neuen Öffnungen reagieren auf die Hauptachsen der Außenanlagenplanung, sodass Garten und Haus in einen Dialog treten. Auch im Inneren des Gebäudes werden historische Öffnungen wiederhergestellt, sodass die geplanten Blickachsen im Garten bis in die straßenseitigen Räume des Haupthauses reichen. Das Thema der Plätze entlang der Achsen wird aufgegriffen und ein Platz vor dem Haupthaus auf das Niveau des Erdgeschosses angehoben und mit Sitzstufen versehen. Durch die großzügige neue Öffnung fließen Außen- und Innenraum ineinander. Die ursprüngliche Hürde zwischen Hochparterre und Garten wird spielerisch in den Garten verlegt.

Eine Mauer aus wiederverwendeten, sandfarbenen Ziegeln dient als Sichtschutz zum Nachbarn und Auflager für ein grünes Dach. Die Holzdecke mit extensiver Begrünung hebt den Garten in das Obergeschoss vor das Hauptschlafzimmer. Das Geländer mit schlanken Stahlprofilen und Edelstahlgewebe nimmt sich zurück und dient als Rankhilfe.

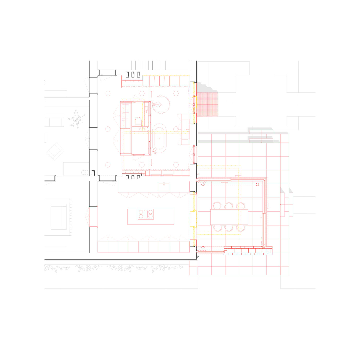
Das Innere des Hauses wurde entkernt. Ein Kubus mit Garderobe, Hauswirtschaftsraum und Gäste-WC steht frei im Raum und grenzt den Eingangsbereich vom wohnlichen Bad ab. Der Blick aus der Dusche geht entlang der Hauptachse im Garten in die gesamte Tiefe des Grundstücks bis zur alten Eiche – dem Ausgangspunkt der vorgefundenen Außenanlagenplanung.

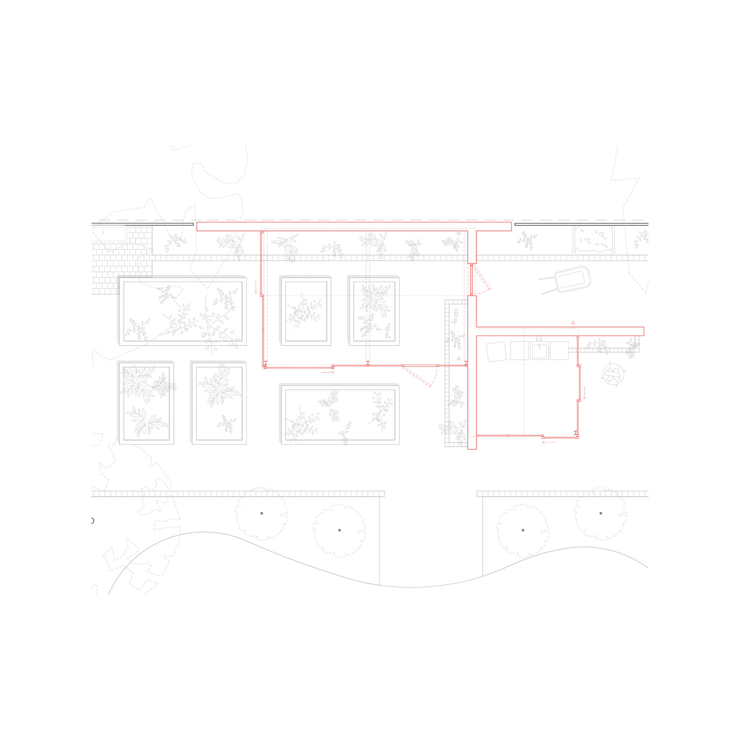
Im Bereich des Gemüsegartens wurde die Anordnung der (Hoch-)Beete übernommen. Drei präzise gesetzte Ziegelmauern zonieren diesen Bereich des Gartens in Gemüsegarten, Außenküche und Lager. Ein Glasdach legt sich analog zum Haupthaus auf die Mauern. Es entstehen fließende Räume zwischen Außen und dem Haus für Pflanzen. Die sandfarbenen, wiederverwendeten Ziegel greifen den Farbton der was- sergebundenen Wegedecke auf.

Allein durch die konsequente Verwendung von alten, aufgearbeiteten Ziegeln konnten in dem Projekt ca. 1,5t CO2-Äquivalente eingespart werden. Dies entspricht beispielsweise in etwa der gefahrenen Distanz von 7.250 km mit einem modernen Mittelklasse-PKW.

WEITBLICK

"Häuser des Jahres, 2024" – Callwey Verlag – Longlist

490 m2 BGF // 2021-2023
David Gössler, Jakob Wolters, Yola Fahdt
Photos: © Constantin Riess


Bestand
Das Haupthaus wurde in seiner Geschichte bereits mehrfach umgebaut und verändert, sodass von seiner historischen Struktur vom Ende des 19. Jahrhunderts nur noch wenig vorgefunden wurde. Das Gebäude wurde zwischenzeitlich zu einem Mehrfamilienhaus aufgeteilt, das Dach vollständig abgetragen, erneuert und dabei ausgebaut. Das Innere war entsprechend verwinkelt und verbaut. Von der ursprünglichen Großzügigkeit der verbundenen Wohnräume fehlte jede Spur. Bereits der ursprüngliche Bau hatte auf der der Straße abgewandten Seite keinen Zugang zum Garten. Das Erdgeschoss wurde als Hochparterre ausgeführt, sodass im Inneren der Eindruck einer innerstädtischen Erdgeschosswohnung anstelle der eines großzügigen Einfamilienhauses im Grünen entstand.

Konzept
Das Konzept sieht daher die Öffnung des Haupthauses zur Gartenseite vor. Die neuen Öffnungen reagieren auf die Hauptachsen der Außenanlagenplanung, sodass Garten und Haus in einen Dialog treten. Auch im Inneren des Gebäudes werden historische Öffnungen wiederhergestellt, sodass die geplanten Blickachsen im Garten bis in die straßenseitigen Räume des Haupthauses reichen. Das Thema der Plätze entlang der Achsen wird aufgegriffen und ein Platz vor dem Haupthaus auf das Niveau des Erdgeschosses angehoben und mit Sitzstufen versehen. Durch die großzügige neue Öffnung fließen Außen- und Innenraum ineinander. Die ursprüngliche Hürde zwischen Hochparterre und Garten wird spielerisch in den Garten verlegt.

Eine Mauer aus wiederverwendeten, sandfarbenen Ziegeln dient als Sichtschutz zum Nachbarn und Auflager für ein grünes Dach. Die Holzdecke mit extensiver Begrünung hebt den Garten in das Obergeschoss vor das Hauptschlafzimmer. Das Geländer mit schlanken Stahlprofilen und Edelstahlgewebe nimmt sich zurück und dient als Rankhilfe.

Das Innere des Hauses wurde entkernt. Ein Kubus mit Garderobe, Hauswirtschaftsraum und Gäste-WC steht frei im Raum und grenzt den Eingangsbereich vom wohnlichen Bad ab. Der Blick aus der Dusche geht entlang der Hauptachse im Garten in die gesamte Tiefe des Grundstücks bis zur alten Eiche – dem Ausgangspunkt der vorgefundenen Außenanlagenplanung.

Im Bereich des Gemüsegartens wurde die Anordnung der (Hoch-)Beete übernommen. Drei präzise gesetzte Ziegelmauern zonieren diesen Bereich des Gartens in Gemüsegarten, Außenküche und Lager. Ein Glasdach legt sich analog zum Haupthaus auf die Mauern. Es entstehen fließende Räume zwischen Außen und dem Haus für Pflanzen. Die sandfarbenen, wiederverwendeten Ziegel greifen den Farbton der was- sergebundenen Wegedecke auf.

Allein durch die konsequente Verwendung von alten, aufgearbeiteten Ziegeln konnten in dem Projekt ca. 1,5t CO2-Äquivalente eingespart werden. Dies entspricht beispielsweise in etwa der gefahrenen Distanz von 7.250 km mit einem modernen Mittelklasse-PKW.


DAVID GÖSSLER | ARCHITEKTUR